- 產品列表更多
- 聯系我們更多
-
煙臺超群石化機械有限公司
電??????話:0535-6207725
圖文 ?傳真:0535-6349179
郵??????箱:cqsh2012@aliyun.com
銷售部手機:15864087878(李經理)
18954554963(黃靜)
18954557113(季潔)
13688662616(徐娜)
技術咨詢:15864087878(李經理)
Q Q:3292262386
售后查件電話:18863880818(周杰)
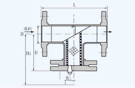
T型過濾器
時間:2013-11-25 16:10


夾套加熱Y型過濾器 YSRY II型3.2-3、反折流T型過濾器 SRT III型

規格尺寸
DN | in | L | H | H1 | 有效過濾面積 m2 |
40 | 1½ | 256 | 149 | 306 | 0.0029 |
50 | 2 | 256 | 149 | 306 | 0.0039 |
65 | 2½ | 292 | 170 | 348 | 0.0053 |
80 | 3 | 312 | 182 | 384 | 0.0079 |
100 | 4 | 362 | 210 | 473 | 0.0133 |
125 | 5 | 420 | 235 | 529 | 0.0204 |
150 | 6 | 460 | 260 | 581 | 0.0273 |
200 | 8 | 560 | 320 | 694 | 0.0462 |
250 | 10 | 670 | 380 | 821 | 0.0699 |
300 | 12 | 780 | 430 | 949 | 0.1001 |
350 | 16 | 830 | 450 | 1023 | 0.1205 |
400 | 20 | 91 | 530 | 1166 | 0.1585 |
上一篇:U型管道過濾器 下一篇:精密過濾器(FMGJ型保安過濾器)